◎土地:約58.18坪
◎建物:約30.54坪
■能勢電鉄妙見線『光風台』駅徒歩6分
■全居室南東向きにつき、陽当り・通風良好!
【2026(R8)年2月リフォーム済】
●システムキッチン・洗面台・トイレ新調
●各室クロス貼替え
●畳表替え ●障子・襖・網戸貼替え
●照明・カラーモニターホン新調
●外構工事
●ウッドデッキ設置 等々
■生活至便
●デイリーカナートイズミヤ光風台店:約380m(徒歩5分)
●セブンイレブンときわ台店:約1510m(徒歩19分)
●豊能町立光風台小学校/吉川中学校:約1160m(徒歩15分)
●豊能町立とよの西学園:約1580m(徒歩20分)
●池田泉州銀行ときわ台支店光風台出張所:約400m(徒歩5分)
●豊能光風台郵便局:約650m(徒歩8分)
●豊能町役場吉川支所:約1390m(徒歩17分)
●池田泉州銀行ときわ台支店:約1460m(徒歩18分)
●豊能町立図書館:約1320m(徒歩17分)
- 価格
- 1,380万円
- 中古戸建
- 間取
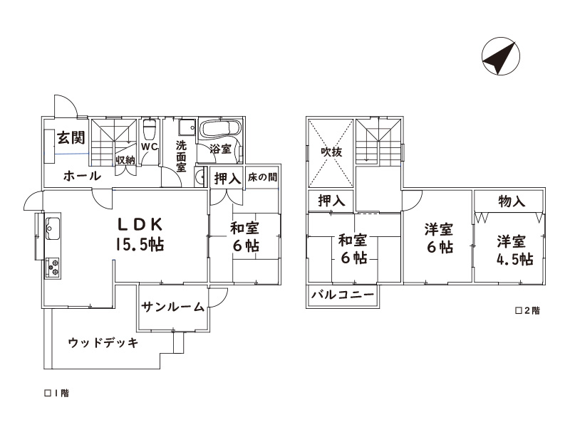
- 4LDK
|
|
| 所在地 | 大阪府豊能郡豊能町光風台4丁目 |
|---|---|
| 交通 | 能勢電鉄妙見線 光風台駅 徒歩6分 |
| 築年月 | 1977/02 | 新築/中古 | 中古 |
|---|---|---|---|
| バルコニー | 向き | ||
| 建物階数 | 地上2階 | 部屋階数 | |
| 建物構造 | 木造 | ||
| 敷地全体面積 | 192.36m² | 延べ床面積 | 100.98m² |
| 駐車場 | 駐車1台 | 取引態様 | 一般 |
| 引渡/入居時期 | 即時 | 現況 | 空家 |
| 地目 | 宅地 | 用途地域 | 第一種低層住居専用地域 |
| 都市計画 | 市街化区域 | 地勢 | |
| 土地面積 | 192.36m² | 土地面積計測方式 | 公簿 |
| 建ぺい率 | 50% | 容積率 | 100% |
| 土地権利 | 所有権 | 接道状況 | 一方 |
| 接道方向1 | 北西 | 接道間口1 | |
| 接道種別1 | 公道 | 接道幅員1 | 6.2m |
| 国土法届出 | 不要 | ||
| 周辺環境 |
豊能町立とよの西学園 豊能町立とよの西学園 ※小学校・中学校に関しましては、令和8年4月より、豊能町立吉川小学校、光風台小学校、東ときわ台小学校、吉川中学校の3小学校1中学校が統合し、「義務教育学校」として「豊能町立とよの西学園」が開校します。(旧吉川中学校地に開校) 詳細は豊能町HPをご確認ください。(https://www.town.toyono.osaka.jp/kosodate-kyouiku/gakkou-kyouiku/ikkan-kyouiku/page007253.html) |
||
| 設備・条件 | 都市ガス 公営水道 排水下水 駐車場有 ※増築:1996年月日不詳(増築登記:2002年11月)
※附属建物:車庫/RC造平屋建/17.92㎡(幅:2,950㎜×高さ1,930㎜×奥行5,500㎜) |
||
| 自社物 | 状態 | 売出中 | |
Loading...
※地図上で表示している位置は、物件位置とは異なります。詳しくはお問合せ下さい。
※物件掲載内容と現況に相違がある場合は現況を優先と致します。
※物件掲載内容と現況に相違がある場合は現況を優先と致します。


































