◎土地:約66.65坪
◎建物:約55.37坪
≪2018年8月建築の築浅物件≫
●オール電化住宅
●駐車2台
●2台用カーポート有り
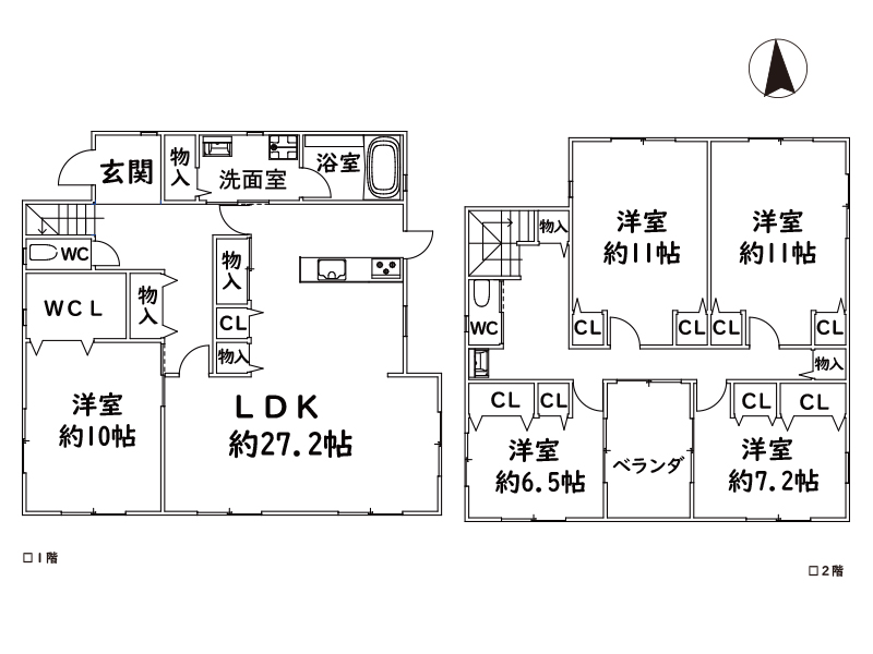
●約27帖の広々LDK
●全ての居室、浴室や洗面室等の水回りスペースも広々
●居室だけでなく、生活・作業同線に沿った収納が豊富です!
【2026(R8)年2月リフォーム済】
●外構工事
●カーポート新設
●各室クロス貼替え
●シーリング照明取付 等々
●箕面市立とどろみの森学園:約440m(徒歩6分)
●みすず学園森町こども園:約440m(徒歩6分)
●トライアル箕面森町店:約850m(徒歩11分)
●ファミリーマート箕面森町:約500m(徒歩6分)
- 価格
- 4,780万円
- 中古戸建
- 間取
- 5SLDK
|
|
| 所在地 | 大阪府箕面市森町中1丁目 |
|---|---|
| 交通 | 北大阪急行電鉄 バス(森町中二丁目 乗24分 停歩3分) |
| 築年月 | 2018/08 | 新築/中古 | 中古 |
|---|---|---|---|
| バルコニー | 向き | ||
| 建物階数 | 地上2階 | 部屋階数 | |
| 建物構造 | 木造 | ||
| 敷地全体面積 | 220.35m² | 延べ床面積 | 183.06m² |
| 駐車場 | 2台 | 取引態様 | 一般 |
| 引渡/入居時期 | 即時 | 現況 | 空家 |
| 地目 | 宅地 | 用途地域 | 第一種中高層住居専用地域 |
| 都市計画 | 市街化区域 | 地勢 | 平坦 |
| 土地面積 | 220.35m² | 土地面積計測方式 | 公簿 |
| 建ぺい率 | 60% | 容積率 | 200% |
| 土地権利 | 所有権 | 接道状況 | 一方 |
| 接道方向1 | 北 | 接道間口1 | |
| 接道種別1 | 公道 | 接道幅員1 | 6.6m |
| 国土法届出 | 不要 | ||
| 周辺環境 |
とどろみの森学園 とどろみの森学園 |
||
| 設備・条件 | システムキッチン 公営水道 排水下水 駐車場有 オール電化 ※北大阪急行線『箕面萱野』駅バス24分『森町中二丁目』停より徒歩3分 |
||
| 自社物 | 状態 | 売出中 | |
Loading...
※地図上で表示している位置は、物件位置とは異なります。詳しくはお問合せ下さい。
※物件掲載内容と現況に相違がある場合は現況を優先と致します。
※物件掲載内容と現況に相違がある場合は現況を優先と致します。


































